The Hendrix College Wellness and Athletics Center was conceptualized when Hendrix College decided to move forward with a campuswide building program, commenced in 1998, which would provide replacement facilities for its outdated recreation spaces. The plan was to build a state-of-the-art recreation center that would fulfill the future needs of student and faculty populations, as well as some of the needs in the surrounding community.

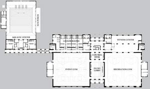
The Aquatic Center, which is adjacent to the WAC and connected via a covered arched colonnade, is composed of a one-story brick structure with locker rooms that were specially designed to accommodate Hendrix athletes,

students and recreational swimmers. It includes restrooms, a carefully crafted entry lobby and swim coach offices, which have a direct visual connection to the entire 314-foot perimeter of the pool.

This facility stands in front of the glass-enclosed natatorium, which showcases a retractable open-air roof system perched above a 25-yard-by-25-meter indoor pool with two 1-meter and two 3-meter diving platforms.

If the fresh air allowed in when the roof retracts weren’t enough, between competitions, or on any sunny day, the swimmers can enjoy the sun porch by passing through operable sliding glass walls that surround the 6,164 square feet of pool on three sides. When the sliding portion of the walls are opened, fresh air enters at the deck level and hot air is allowed to escape through the open roof, thus creating a flu effect. This eight-lane, 377,767-gallon pool was designed with cutting-edge, rim-flow gutter technology that benefits swimmers greatly.

This facility serves the needs of the college and its competitive swimming program with varying depths, from 4 feet to 13 feet. It also provides valuable water space to the surrounding community through swim lessons and an Aquakids program, which exposes families to the benefits of water and safety, as well as Hendrix College.

The WAC is designed with varsity team facilities on one side of the two-story lobby and recreational and kinesiology facilities on the other. The building entrance and lobby align with the axis from the center of the academic campus, providing views through the building to the athletic fields beyond. Second- floor faculty/staff offices, the classroom and the Movement Studio overlook the athletic field complex to the east.

The WAC’s overall design is in the traditional Hendrix style of red brick with native Arkansas stone along the base of the building, clay tile roofing, copper dormers, precast arches, richly hued oak wainscot, warm yet neutral interiors and patterned terrazzo floors.

To maintain the facility’s unique nature, the quality of the materials used was key. Though the materials and attention to detail respect Hendrix quality standards, the project team worked diligently to provide value for Hendrix College, constructing the WAC for just under $152 per square foot.